Հակոբյան փող

Արաբկիր, Երևան

154,000 / Ք.Մ. 1,925
80 Ք.Մ.
4
5/5
ID 158131
Երևան, Արաբկիր, Հակոբյան փող
449
Երևան, Արաբկիր, Հակոբյան փող
154,000
80 Ք.Մ.
4
5/5
80 Ք.Մ.
4
5/5

4 սենյականոց բնակարան Հակոբյան փող, Արաբկիր, Երևան, 158131

26.11.2025
14.12.2025
  • 1,925
  • 1
  • Քարե
  • 2.8 Մ
  • Վերանորոգված

ինֆորմացիա

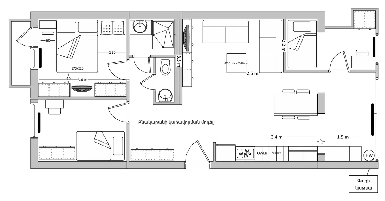
Վաճառվում է կապիտալ վերանորոգված 3 սենյականոց բնակարան (ձևափոխված 3 լուսավոր ննջասենյակի)՝ Մերգելյանում, Հակոբյան 8 հասցեով։ Բաց հատակագիծ՝ միացված հյուրասենյակ և խոհանոց, առանձին լոգասենյակ և սանհանգույց։ 
- 80.2 քմ, քարե շենքի 5/5-րդ հարկ, արևելք-արևմուտք լուսավորությամբ։  
- Ունի բաց պատշգամբ հիմնական ննջասենյակից։

Բնակարանի մասին
- Կապիտալ վերանորոգում՝ նոր տանիք, պղնձե էլեկտրալարեր, ջրախողովակներ, ջերմամեկուսացված պատուհաններ  
- Ջեռուցման համակարգ և օդորակիչ   
- Բաց հատակագիծ՝ միացված խոհանոց և հյուրասենյակ, 3 ննջասենյակ
- Բարձրակարգ եվրոպական ներքին դռներ, իտալական և գերմանական լուսավորություն, ֆրանսիական ձգվող առաստաղներ
- Պատվերով ներկառուցված պահարաններ և դարակաշար  
- Ժամանակակից խոհանոց՝ չժանգոտվող պողպատից սարքավորումներով, Corian աշխատանքային մակերեսով, կարծրացված ապակե պատի երեսապատմամբ 
- Մասամբ կահավորված և հարդարված՝ եվրոպական թանկարժեք կահույք, բրդյա գորգ, խոհանոցային սարքավորումներ, փոշեկուլ, 32" հեռուստացույց

Տեղադրություն
- Քայլելու հեռավորության վրա՝ Բարեկամություն մետրո, սուպերմարկետներ, գյուղտնտեսական շուկա, սրճարաններ, ֆիթնես կենտրոն, Մերգելյան այգի, Նաիրի Զարյան դպրոց  
- Խաղաղ և մաքուր՝ զերծ փողոցի աղմուկից ու փոշուց

Գինը՝ 154,000 ԱՄՆ դոլար։

Կոմունալ հարմարություններ

Լրացուցիչ

ՔԱՐՏԵԶ

գործակալություն

KENTRON real estate agency

Հիփոթեք

%
ԻՄԱՑԵՔ ԱՎԵԼԻՆ
alpha

Նմանատիպ օրինակներ

ID 150473
Վաճառք
Բնակարան
Վաճառք
169,000
21.03.2024
04.06.2024
Ա. Խաչատրյան փող, Արաբկիր, Երևան
ARARAT realty

75
3
5/5
Բնակարանը վաճառվում է գույքով և տեխնիկայով ,առկա է բաց պատշգամբ և ավտոտնակ ։
գործակալություն

ARARAT realty

ID 158132
Վաճառք
Բնակարան
Վաճառք
154,000
26.11.2025
14.12.2025
Հակոբյան փող, Արաբկիր, Երևան
ARARAT realty

80
4
5/5
Վաճառվում է կապիտալ վերանորոգված 3 սենյականոց բնակարան (ձևափոխված 3 լուսավոր ննջասենյակի)՝ Մերգելյանում, Հակոբյան 8 հասցեով։ Բաց հատակագիծ՝ միացված հյուրասենյակ և խոհանոց, առանձին լոգասենյակ և սանհանգույց։ - 80.2 քմ, քարե շենքի 5/5-րդ հարկ, արևելք-արևմուտք լուսավորությամբ։ - Ունի բաց պատշգամբ հիմնական ննջասենյակից։ Բնակարանի մասին - Կապիտալ վերանորոգում՝ նոր տանիք, պղնձե էլեկտրալարեր, ջրախողովակներ, ջերմամեկուսացված պատուհաններ - Ջեռուցման համակարգ և օդորակիչ - Բաց հատակագիծ՝ միացված խոհանոց և հյուրասենյակ, 3 ննջասենյակ - Բարձրակարգ եվրոպական ներքին դռներ, իտալական և գերմանական լուսավորություն, ֆրանսիական ձգվող առաստաղներ - Պատվերով ներկառուցված պահարաններ և դարակաշար - Ժամանակակից խոհանոց՝ չժանգոտվող պողպատից սարքավորումներով, Corian աշխատանքային մակերեսով, կարծրացված ապակե պատի երեսապատմամբ - Մասամբ կահավորված և հարդարված՝ եվրոպական թանկարժեք կահույք, բրդյա գորգ, խոհանոցային սարքավորումներ, փոշեկուլ, 32" հեռուստացույց Տեղադրություն - Քայլելու հեռավորության վրա՝ Բարեկամություն մետրո, սուպերմարկետներ, գյուղտնտեսական շուկա, սրճարաններ, ֆիթնես կենտրոն, Մերգելյան այգի, Նաիրի Զարյան դպրոց - Խաղաղ և մաքուր՝ զերծ փողոցի աղմուկից ու փոշուց Գինը՝ 154,000 ԱՄՆ դոլար։
գործակալություն

ARARAT realty

ID 144823
Վաճառք
Բնակարան
Վաճառք
165,000
13.02.2024
24.06.2024
Գրիբոեդովի փող, Արաբկիր, Երևան
MyRealty Real Estate

59
3
6/10
գործակալություն

MyRealty Real Estate

ID 156493
Վաճառք
Բնակարան
Վաճառք
155,000
27.08.2025
26.12.2025
Վ.Վաղարշյան փող, Արաբկիր, Երևան
Safe House

72
3
4/5
Վաճառվում է 3 սենյականոց բնակարան Արաբկիր համայնքում՝ Վաղարշյան փողոցում։ Բնակարանը գտնվում է 5 հարկանի քարե շենքի 4-րդ հարկում, որի ընդհանուր մակերեսը կազմում է 72 ք․մ․։ Բնակարանը գտնվում է բարվոք վիճակում։
գործակալ

Լիլիթ Միրզոյան

Առցանց վճարում

WIDE RANGE OF PAYMENT METHODS

Օգնությու՞ն է պետք Հարցրու մեզ

DO NOT HESITATE TO CONTACT US